Home icon

Property Details

3 Bedroom Townhouse (TH11)

TownHouse 11
Bedrooms 3 Bedrooms
Bathrooms 3 Bathrooms
Square Meters 206 sqm

East Legon, Kigali Street

Overview

Located on Kigali Street in East Legon, The OneHive Townhouse offers modern living within a secure and exclusive residential setting. Each three-storey home spans 206 m² and features spacious living and entertainment areas designed for comfort and functionality. The upper floors include ensuite bedrooms, a family lounge, and a well-designed master suite with a walk-in closet and spa-style bathroom. Select units also feature private outdoor spaces, creating a calm retreat within the home. The development is built with sustainability in mind, incorporating energy-efficient windows, solar water heating, and an eco-friendly biodigester system. Residents enjoy backup power and water, 24-hour security, and a quiet, well-maintained environment. Conveniently located minutes from A&C Mall, Accra Mall, Kotoka International Airport, leading schools, and dining options, The OneHive Townhouse combines city convenience with privacy and comfort. The OneHive Townhouse brings together luxury, security, and sustainable urban living.

Amenities

Backup Power Generator Backup Power Generator
Backup Water Supply Backup Water Supply
Cable & Satellite TV Cable & Satellite TV
Car Park Car Park
CCTV Monitoring CCTV Monitoring
Intercom Telephone System Intercom Telephone System
Internet Connection Internet Connection
Secured Electric Secured Electric
Security & Safety Security & Safety

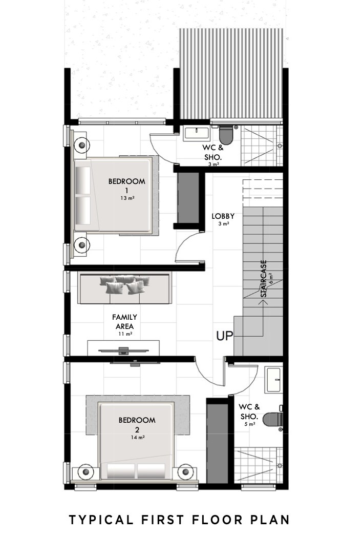
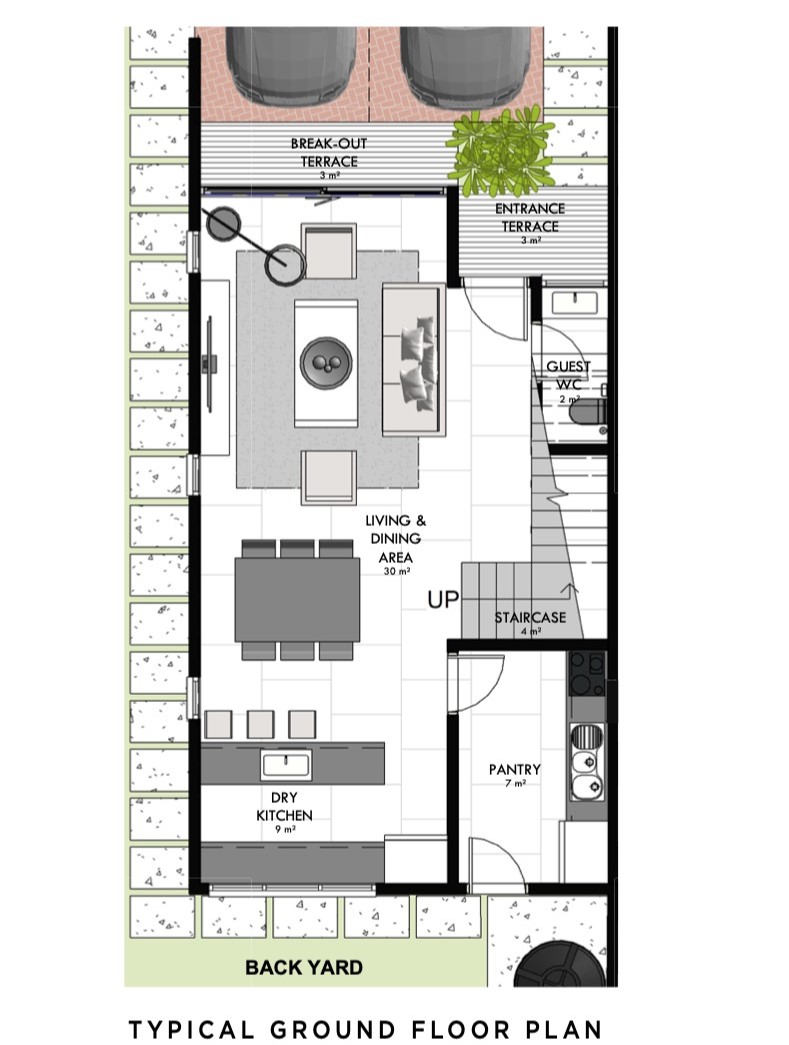
Floor Plans

Ground Floor
Space Area (m2)
Break-Out Terrace 3
Enterance Terrace 3
Guest WC 2
Living & Dining Area 36
Staircase 4
Pantry 7
Dry Kitchen 9
Other Private Space 68.98
Total 132.98 SQM
First Floor
Space Area (m2)
Bedroom 1 13
Washroom 3
Bedroom 2 14
Washroom 4
Family Area 11
Lobby 3
Staircase 6
Total 54.00 SQM
Second Floor
Space Area (m2)
Master Bedroom 24
Walk-In Closet 12
Washroom 10
Lobby 5
Staircase 4
Total 55.00 SQM

Payment Terms

  • A reservation fee of $5,000 to be paid on the day of executing the Sales and Purchase Agreement.
  • The payment plan will be structured as follows or in a customised payment plan:
Due Cash Mortgage
Reservation fee At Reservation $5,000 $5,000
1st Payment 1st Month 25% 30%
2nd Payment 3rd Month 25% NIL
3rd Payment 6th Month 25% NIL
4th Payment 9th Month 25% NIL
5th Payment 12th Month 25% NIL
Final Payment Upon Completion 10% 70% (Paid by mortgage provider)
Reservation fee
Due At Reservation
Cash $5,000
Mortgage $5,000
1st Payment
Due 1st Month
Cash 25%
Mortgage 30%
2nd Payment
Due 3rd Month
Cash 25%
Mortgage NIL
3rd Payment
Due 6th Month
Cash 25%
Mortgage NIL
4th Payment
Due 9th Month
Cash 25%
Mortgage NIL
5th Payment
Due 12th Month
Cash 25%
Mortgage NIL
Final Payment
Due Upon Completion
Cash 10%
Mortgage 70% (Paid by mortgage provider)
Choose what you want with this development

Important Note: US Dollar quotations are for indicative purposes ONLY. Customers pay in Ghana Cedi at Zenith Bank's prevailing US Dollar sell rate at the time of payment.