Home icon

Property Details

3 Bedroom Townhouse – TH5

Block C
Bedrooms 3 Bedrooms
Bathrooms 2 Bathrooms
Square Meters 205 sqm

East Legon, Kinshasa Street

Overview

Tucked away in East Legon's vibrant Kigali Street, this OneHive townhouse offers a blend of modern comfort and sustainable living. Spanning three floors and covering 169 m², the home features spacious living and entertainment areas, inviting you to experience true elegance. Upstairs you'll find well-appointed bedrooms, each with its own bathroom, a family lounge, and a serene master suite with a walk-in closet and spa-inspired bath. Select homes also include staff quarters and private outdoor spaces. Beyond the interiors, the property is designed with sustainability in mind. From energy-saving windows and solar water heating to an efficient biodigester sewage system, residents enjoy amenities such as backup power, 24-hour security, and proximity to top schools and restaurants. Located just minutes from A&C Mall, Accra Mall, and Kotoka Airport, the home combines the ease of city living with the tranquility and privacy of an exclusive neighborhood. It's a place where luxury, convenience, and responsible living come together.

Amenities

Backup Power Generator Backup Power Generator
Backup Water Supply Backup Water Supply
Basement Parking Basement Parking
Beer Lounge & Restaurant Beer Lounge & Restaurant
CCTV Monitoring CCTV Monitoring
Centralized Air Conditioning Centralized Air Conditioning
Connectivity & Media Connectivity & Media
Elegant Living Spaces Elegant Living Spaces
Elevator to Apartments Elevator to Apartments
Intercom Telephone System Intercom Telephone System
Internet Connection Internet Connection
Secured Electric Secured Electric
Security & Safety Security & Safety
Smart Home Functionalities Smart Home Functionalities
Utilities & Backup Systems Utilities & Backup Systems

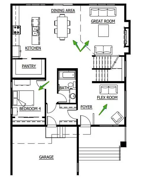
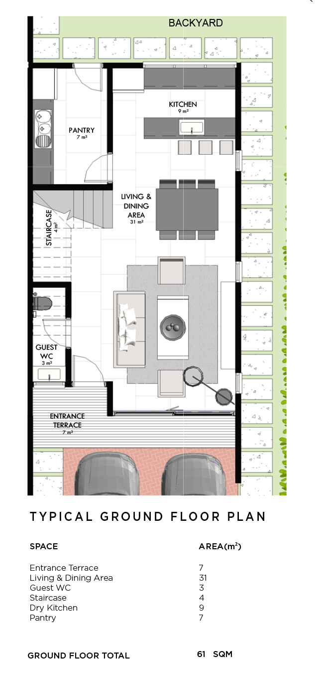
Floor Plans

Ground Floor
Space Area (m2)
Entrance 3
Total 3.00 SQM
First Floor
Space Area (m2)
Terrace 3
Entrance 3
Total 6.00 SQM
Second Floor
Third Floor
Space Area (m2)
Kitchen 45
Total 45.00 SQM

Payment Terms

  • A reservation fee of $5,000 to be paid on the day of executing the Sales and Purchase Agreement.
  • The payment plan will be structured as follows or in a customised payment plan:
Due Cash Mortgage
Reservation fee At Reservation $5,000 $5,000
1st Payment 1st Month 25% 30%
2nd Payment 3rd Month 25% NIL
3rd Payment 6th Month 25% NIL
4th Payment 9th Month 25% NIL
5th Payment 12th Month 25% NIL
Final Payment Upon Completion 10% 70% (Paid by mortgage provider)
Reservation fee
Due At Reservation
Cash $5,000
Mortgage $5,000
1st Payment
Due 1st Month
Cash 25%
Mortgage 30%
2nd Payment
Due 3rd Month
Cash 25%
Mortgage NIL
3rd Payment
Due 6th Month
Cash 25%
Mortgage NIL
4th Payment
Due 9th Month
Cash 25%
Mortgage NIL
5th Payment
Due 12th Month
Cash 25%
Mortgage NIL
Final Payment
Due Upon Completion
Cash 10%
Mortgage 70% (Paid by mortgage provider)
Choose what you want with this development

Important Note: US Dollar quotations are for indicative purposes ONLY. Customers pay in Ghana Cedi at Zenith Bank's prevailing US Dollar sell rate at the time of payment.